Estimated read time: 5-6 minutes
This archived news story is available only for your personal, non-commercial use. Information in the story may be outdated or superseded by additional information. Reading or replaying the story in its archived form does not constitute a republication of the story.
SALT LAKE CITY — Smith Entertainment Group anticipates that it will complete its multiyear Delta Center remodel by the fall of 2027, before it plans to focus its full attention on building a downtown district around it, according to the group's proposed agreement with Salt Lake City released on Friday.
The 136-page document outlines all sorts of details and logistics, including traffic, parking, public safety reports and homeless mitigation plans. It also outlines some key details of the plan.
"This is an exciting step toward executing a vision to transform our urban core by centering walkability, affordability and the needs of families, residents and visitors," Salt Lake City Mayor Erin Mendenhall said.
What's included in the agreement
A few key details stand out in the full proposed agreement:
- The arena renovation — needed to help the venue accommodate both the NBA's Utah Jazz and the NHL's new Utah Hockey Club — would pick up in April 2025 and be carried out in various periods over the next few years. It's scheduled to wrap up by October 2027, ahead of the 2027-28 season for both teams.
- Smith Entertainment Group can seek up to $900 million in bonds toward the project. Renovations are expected to account for $525 million of any bonds, while the remainder of the funds — about $375 million — would go toward an entertainment district surrounding the arena with projects carried out between 2024 and 2033.
- Proceeds from a proposed 0.5% sales tax would go toward repaying debt from the bonds over the next 30 years. The Salt Lake City Council is tasked with approving a sales tax increase, which it must vote on this year.
- Salt Lake City would have "no obligation or liability" to pay for any gaps should the tax not fully repay the bond. Smith would have 10 years to complete any project that received public funding, so all projects tied to the tax must be completed by 2034.
- There are "extraordinary remedies" should Smith Entertainment Group break a 30-year pledge to play exclusively at the Delta Center — minus a few exceptions like a Winter Classic outdoor hockey game. The company would have to repay what it receives from the sales tax by that point and a "liquidated damages amount," which could cost as much as $250 million. It may also trigger litigation.

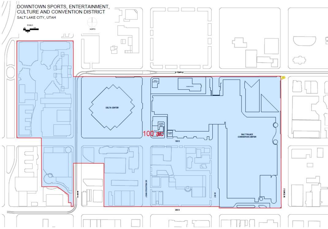
- The Smith property would be the three-block segment that the company has focused on over the past few months, but the full revitalization zone includes most of downtown from South Temple to 200 South and West Temple to 400 West, as well as The Gateway shopping center west of the Delta Center.
- Buildings in the Smith property area may exceed 40 stories. Proposed zoning changes would expand the maximum height to 600 feet.
The document released Friday outlines other key details of the proposed agreement unveiled earlier this week. An overview of the agreement released by the Salt Lake City Mayor's Office noted that the company would build and maintain proposed gathering and event spaces in a district east of the arena in addition to receiving up to $900 million in public funds.
Smith Entertainment Group would tack on $1-$3 fees per Delta Center ticket sold, which would go toward a Salt Lake City fund that helps pay for affordable housing projects within the city beginning in mid-2025. On top of that, the organization will be tasked with figuring out ways to incorporate improvements to historic Japantown into its plans.
Here's the Delta Center renovation timeline: SEG estimates that it will complete its remodel in time for the 2027-2028 NBA/NHL seasons pic.twitter.com/n1Q4XRurbK
— Carter Williams (@cwilliamsKSL) July 5, 2024
The city would also receive other benefits, such as new internships, shadowing and apprenticeship programs for high school and college students, as well as more youth programming and free/subsidized tickets for Salt Lake City-based community organizations. Both teams would also make players available for at least four speaking engagements with student groups and schools every year.
The full proposal released Friday also includes other key components like parking, traffic, public safety and public safety plans. These include details on how 300 West could be tunneled underground at the Delta Center to accommodate a plaza east of the arena. A 500-stall parking garage would also be built by the southwest corner of the arena.
The other reports note that Salt Lake City police would provide "consistent area coverage" through a downtown bike squad and patrol officers. There would also be a space for private security and police to work from in the district. Several groups will work together to address homelessness in the district, including citations for "illegal camping if individuals refuse to relocate into available emergency shelter or another location."
But the document still hinges on Smith Entertainment Group securing a lease with Salt Lake County over the two blocks east of the Delta Center by mid-2025. Mike Maughan, project principal for Smith Entertainment Group, said on Tuesday that negotiations are "going well" between Smith and the county.
There's no timeline for when the county may decide on that.
What happens next
The Salt Lake City Council is currently slated to vote on whether to accept the agreement on Tuesday. The deal would then be sent to a state committee for final approval, per SB272, a bill passed this year that set up the whole revitalization district process.
Should it be approved there, it would go back to the City Council for final approval. The City Council must also vote on whether to approve the sales tax increase and necessary zoning changes this year.
While Salt Lake City Council members appeared pleased with what the city is poised to receive in return, several residents remain skeptical of the deal as it inches closer to a City Council vote. Those against the plan continued to question why Smith Entertainment Group needs public funding, while resident Scott Johnson likened SB272 to high-sticking in hockey.
"I recognize you cannot undo that bill, but you can assess a minor penalty by voting no to the tax increase," he said, adding that he believes the project is taking focus away from key issues like homelessness and housing affordability.










