Estimated read time: 4-5 minutes
This archived news story is available only for your personal, non-commercial use. Information in the story may be outdated or superseded by additional information. Reading or replaying the story in its archived form does not constitute a republication of the story.
SALT LAKE CITY — The next project to breathe new life into The Gateway is taking shape — and it's eight stories tall.
The Gateway's new owner, Vestar, submitted plans this week to build a massive luxury hotel that would attach to the historic Union Pacific Depot — a move seen as the owner's next step to transform the struggling mall into a sweeping lifestyle and entertainment center.
"We believe the addition of an upscale, full-service hotel as an adaptive resource to the historic Union Pacific Depot will further enhance the Gateway as an entertainment and lifestyle destination within downtown Salt Lake City," Jenny Cushing, Vestar's vice president of leasing, said Wednesday.
To build the so-called Union Pacific Hotel, Vestar is partnering with the Athens Group, another Arizona-based company that specializes in building luxury hotels, such as the Montage Deer Valley in Park City, the Montage in Beverly Hills and the Four Seasons Resort in Hualalai, Hawaii, among others, according to the company's website.
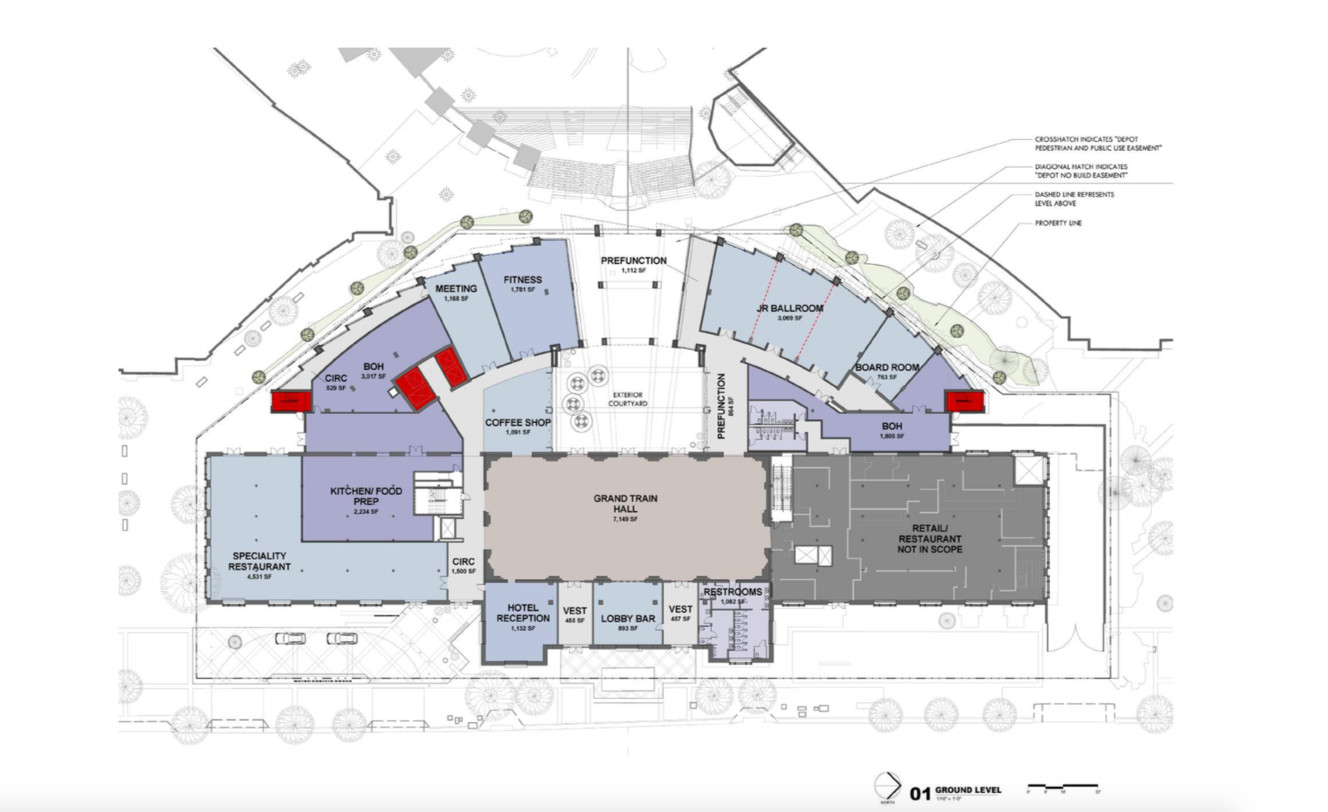
The hotel's design plans call for up to 225 rooms and 26 suites, as well as space for an exterior courtyard on the west side of the depot's grand hall, restaurants, a coffee shop, a ballroom and a fitness room. The plans also would preserve the depot's music venue, which is planned to "work in synergy and complement" with the hotel, Cushing said.
The project is in its beginning stages and will need approval from not only the Salt Lake City Planning Commission but also the city's Historic Landmark Commission because the plans call for "major renovations" to the Union Pacific Depot, said Molly Robinson, the city's planning manager.
"We have very detailed design guidelines for major alterations to landmark sites," Robinson said. "That's what the landmark commission (will use) to evaluate the project, so they'll be concerned about how the new building interacts with the old building."
In the planning documents submitted to Salt Lake City, the design team said the new building will be "particularly sensitive and respectful to the historic Union Pacific Railroad Station and will not compete or distract from its historical architecture by following design guidelines for historic additions and new construction."
"The Union Pacific Hotel project will invigorate the original spirit and historic character of the Union Pacific Railroad Station by exhibiting its rich heritage to the Salt Lake City travelers and hotel guests as well as the Gateway visitors and Salt Lake City residents," planning documents state.

But some downtown neighbors don't agree. They worry the current designs do little to complement the historic depot's character.
"It feels like a 1970s building in Berlin," said Christian Harrison, chairman of the Downtown Community Council, adding that the "chunky" building lacks the "character and charm" of the historic Union Pacific Depot building it's supposed to complement.
"It could be a building in any business park," Harrison said, calling the current designs "disappointing," though he stressed the neighborhood welcomes a hotel — just not one with designs that "fall flat."
"There are some amazing examples in the world of where you take a historic building and you marry it with modern architecture," he said. "There are literally hundreds of examples, and this is not one of them."
But Cushing said the design of the hotel was "intentional," to make it "more modern and stand out" from the Union Pacific Depot. "It gives the opportunity for the historic building to stand out," she said.
Additionally, Cushing said the designs were "inspired" by other train station conversion projects such as the Crawford Hotel in Denver.


Overall, Harrison said he's "excited" about the prospect of a hotel in The Gateway. It just has to be done right, he said.
"One (downtown) neighbor said to me, 'Oh, anything is better than what they have now, which is nothing,' and I had to correct them," He said. "I said, 'Look, what we have now isn't nothing — it's opportunity. And the moment we build, we replace opportunity with reality."
"So I'm eager to get the right companion building for our beautiful, beautiful depot," he said.
Overall, Harrison applauded Vestar for taking a big step to revitalize The Gateway.
"What I know of Vestar's vision is they are turning a very large ship, so it takes time," he said, calling the hotel "a vital piece" of the plan to transform Gateway from "a run-of-the-mill mall to a regional lifestyle center."
"I have faith in Vestar to pull this off," he said.











